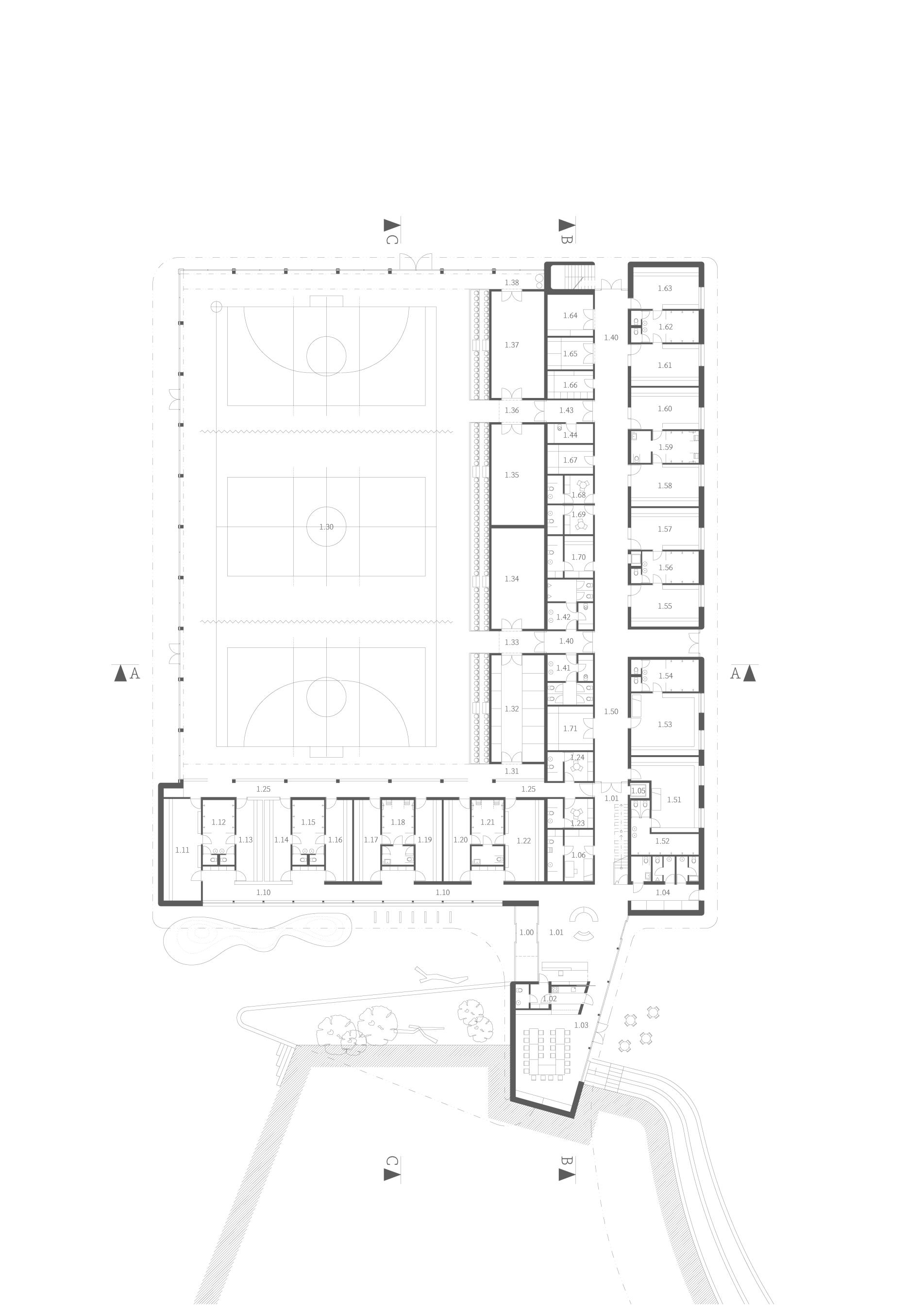
sportovní hala v Novém Jičíně - 2. místo
- Autoři: Jan Kalivoda, Vojtěch Kaas
- |
- Rok realizace: 2023
- |
- Poloha: Nový Jičín
Propojení – synergie – transparentnost.
Bez bariér.
PROPOJUJE
V synergickém průsečíku provozů vzniká nové srdce areálu – tepající místo setkávání.
Objekt vrůstá do struktury okolí maximálním napojením na parter, zeleň a morfologii terénu.
Spojuje vnitřní a vnější veřejný prostor.
BOŘÍ BARIÉRY
Díky sofistikovanému napojení na okolí zajišťuje zcela bezbariérový a bezkolizní provoz sportovců i diváků.
Neskrývá život uvnitř objektu, oživuje místo, iniciuje aktivitu a chuť se přidat.
V klíčových místech odlehčují hmotu transparentní plochy a dálkové průhledy.
RESPEKTUJE
Okolí místa svou jedinečností spoluutváří koncept stavby – myšlenkový, prostorový i materiálový.
Ohled na životní prostředí předurčil výběr materiálů, konstrukčního řešení i způsobu výstavby.
Propracovaný energetický koncept a využití přírodních zdrojů posouvá objekt směrem k energetické soběstačnosti a minimálním provozním nákladům.
Velký obestavěný prostor získává hmotovým a materiálovým členěním lidské měřítko.